Century Artizan is a newly launched plotted development project located in Yelahanka, Airport Road, Bangalore.
This residential community offers premium plots with luxurious features, ensuring a high-quality living experience. Surrounded by beautiful landscapes, Century Artizan provides an exclusive and elite atmosphere.
The developer, Century Real Estate, is committed to delivering top-notch architecture and an exceptional lifestyle to the residents of Yelahanka, Airport Road, North Bangalore.
The location offers excellent connectivity, situated at the heart of Yelahanka, Airport Road, and is close to both existing and upcoming communities and facilities.
Century Artizan boasts a wide range of amenities, including a fully equipped clubhouse, landscaped gardens, gymnasium, swimming pool, recreational rooms, outdoor sports courts, children’s play area, and a party hall. The development is designed with a strong focus on state-of-the-art security, providing round-the-clock protection for its residents.
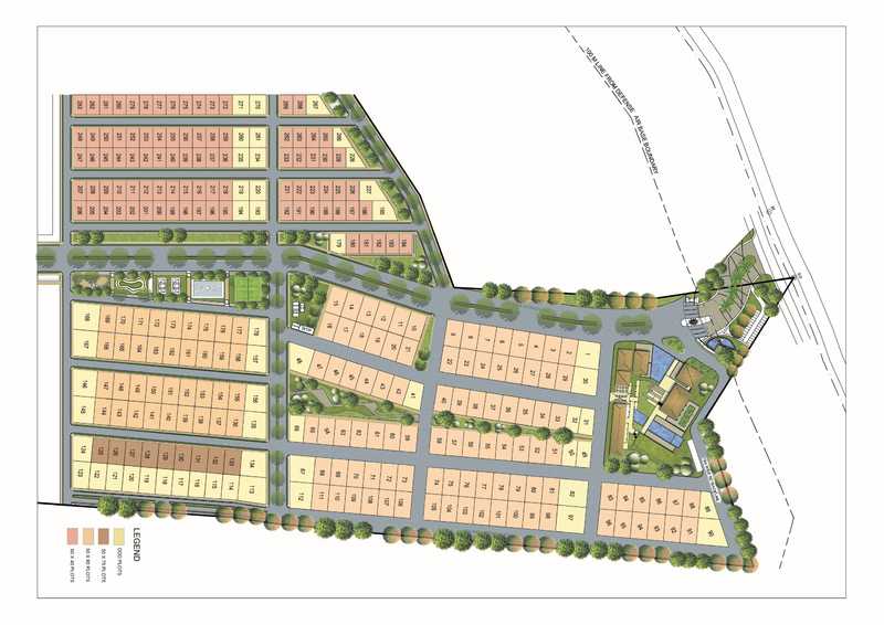
Century Artizan Configuration
Project Location
BSF Campus, Yelahanka, Airport Road
Total Land Area
47 Acres
No. of Units
246 Plots
Towers and Blocks
N.A
Unit Variants
40×60, 50×80 Odd Sizes
Possession Time
Ready for Registration (Phase 1)
Century Artizan Specifications
Waste Management
Segregation of Waste
Compost generation with collected waste for use of fertilizers
Solar
Solar Street Lights
Walkway Washers
Automatic Solar Lighting in Clubhouse
Go Green
Banquet Greens
Organic Fruits & Vegetables Garden
Curated Parks
Environmental
6 Acres of Forest Experience
Green Cover 42000 Trees
12 Acres of Green Parks
Security
RFID Boom Barriers
RFID Enabled Cycles
CCTV Camera at all vantage points.
Rainwater Harvesting
GGBS Paver blocks leading to more rainwater percolation
Century Real Estate, founded in 1973 by Dr. P. Dayananda Pai and Mr. P. Satish Pai, is headquartered in Bangalore, India. Initially focused on the simple buying and selling of land, the company has evolved over the past 35 years into an integrated, full-service real estate development firm. Century Real Estate is credited with shaping Bangalore’s urban landscape, having developed several iconic landmarks, including the Manipal Centre, Taj Residency, Vijaya Bank Headquarters, and Diamond District, among others.
As one of the oldest and most respected real estate companies in India, Century Real Estate’s growth has closely mirrored the rapid development of Bangalore, one of Asia’s fastest-growing cities. Today, the company is the largest real estate owner in Bangalore, with a land bank exceeding 3,000 acres, valued at over USD 2 billion. Their development portfolio spans more than 10 million square feet, comprising hotels, office buildings, residences, educational institutions, and integrated townships across South India.
Century Artizan is a newly launched plotted development project located in Yelahanka, Airport Road, Bangalore.
This residential community offers premium plots with luxurious features, ensuring a high-quality living experience. Surrounded by beautiful landscapes, Century Artizan provides an exclusive and elite atmosphere.
The developer, Century Real Estate, is committed to delivering top-notch architecture and an exceptional lifestyle to the residents of Yelahanka, Airport Road, North Bangalore.
The location offers excellent connectivity, situated at the heart of Yelahanka, Airport Road, and is close to both existing and upcoming communities and facilities.
Century Artizan boasts a wide range of amenities, including a fully equipped clubhouse, landscaped gardens, gymnasium, swimming pool, recreational rooms, outdoor sports courts, children’s play area, and a party hall. The development is designed with a strong focus on state-of-the-art security, providing round-the-clock protection for its residents.
Century Artizan Configuration
Project Location
BSF Campus, Yelahanka, Airport Road
Total Land Area
47 Acres
No. of Units
246 Plots
Towers and Blocks
N.A
Unit Variants
40×60, 50×80 Odd Sizes
Possession Time
Ready for Registration (Phase 1)
Century Artizan Specifications
Waste Management
Segregation of Waste
Compost generation with collected waste for use of fertilizers
Solar
Solar Street Lights
Walkway Washers
Automatic Solar Lighting in Clubhouse
Go Green
Banquet Greens
Organic Fruits & Vegetables Garden
Curated Parks
Environmental
6 Acres of Forest Experience
Green Cover 42000 Trees
12 Acres of Green Parks
Security
RFID Boom Barriers
RFID Enabled Cycles
CCTV Camera at all vantage points.
Rainwater Harvesting
GGBS Paver blocks leading to more rainwater percolation
Century Real Estate, founded in 1973 by Dr. P. Dayananda Pai and Mr. P. Satish Pai, is headquartered in Bangalore, India. Initially focused on the simple buying and selling of land, the company has evolved over the past 35 years into an integrated, full-service real estate development firm. Century Real Estate is credited with shaping Bangalore’s urban landscape, having developed several iconic landmarks, including the Manipal Centre, Taj Residency, Vijaya Bank Headquarters, and Diamond District, among others.
As one of the oldest and most respected real estate companies in India, Century Real Estate’s growth has closely mirrored the rapid development of Bangalore, one of Asia’s fastest-growing cities. Today, the company is the largest real estate owner in Bangalore, with a land bank exceeding 3,000 acres, valued at over USD 2 billion. Their development portfolio spans more than 10 million square feet, comprising hotels, office buildings, residences, educational institutions, and integrated townships across South India.
₹70000
Monthly
Principal & Interest
Property Tax
Home Insurance
Google Nearby Places
Be the first to review “Century Artizan” Cancel reply