Overview

Godrej United is a newly launched residential apartment project located in Hoodi, Whitefield, Bangalore.

This exclusive development by Godrej Properties offers the best in luxury living, featuring spacious apartments with water conservation features. Surrounded by beautiful landscapes, Godrej United provides a serene view and an elite environment for its residents.

With its innovative architecture and commitment to sustainability, the project guarantees a high-quality living experience for the Hoodi community in Whitefield, East Bangalore. Godrej Properties, one of India’s leading real estate developers, is known for delivering some of the country’s most iconic properties over the years.

Situated at the heart of Hoodi, Whitefield, Godrej United enjoys excellent connectivity to key areas of Bangalore.

The development boasts a range of top-tier amenities, including a fully equipped clubhouse, health centers, gymnasium, swimming pool, recreation rooms, outdoor sports courts, children’s play area, party hall, and more. The project is meticulously planned with state-of-the-art 24/7 security systems for the safety and comfort of its residents.

Godrej United Configuration

Project LocationHoodi, Whitefield
Total Land Area8 Acres
No. of Units

514 Units

Towers and Blocks2 Blocks
G + 17 Floors
Unit Variants1,2,2.5,3,4 BHK
Possession TimeMay 2021 Onwards

Godrej United Specifications

Structure
  • Seismic-resistant structure for enhanced safety and stability.
Flooring
  • Premium vitrified flooring in Living and Dining areas.
  • Premium anti-skid ceramic tiles for bathrooms and utility areas.
  • Laminated wooden flooring for bedrooms, adding a touch of elegance.
Doors
  • Hardwood doors with flush shutters, finished with teak veneer and two-side polish.
  • Wooden door frames with flush door shutters for durability and aesthetic appeal.
Plumbing and Sanitary
  • Premium branded CP fittings from renowned brands such as Roca, Jaguar, Kohler, Grohe, Moen, or equivalent.
  • High-quality sanitary fixtures from brands like Kohler, Toto, Roca, Hindware, Jaguar, Parryware, or equivalent.
  • Rainwater harvesting drain pipes included for sustainable water management.
Security
  • Passenger and service lifts with suitable sizes and capacities in every block.
  • Round-the-clock security with intercom facility for resident safety.
  • CCTV cameras installed at all vantage points to ensure enhanced surveillance.
Electricity
  • Grid power supply from BESCOM for each home.
  • Reputed modular switches for easy operation and durability.
  • Copper electrical wiring concealed in conduits for safety and aesthetics.
  • 100% power backup for elevators, common areas, and pumps, ensuring uninterrupted service.

Godrej United Amenities

Gymnasium

Luxury Clubhouse

Swiming Pool

Indoor Games Area

Yoga Zone

Multiple Sport Courts

Basketball Court

Landscaped Gardens

Retail Store

Multipurpose Party Area

Kids Play Area

Jogging,Skating Track

Godrej United Price

 

Unit TypeSize in Sq.ftApprox. All Inclusive Price
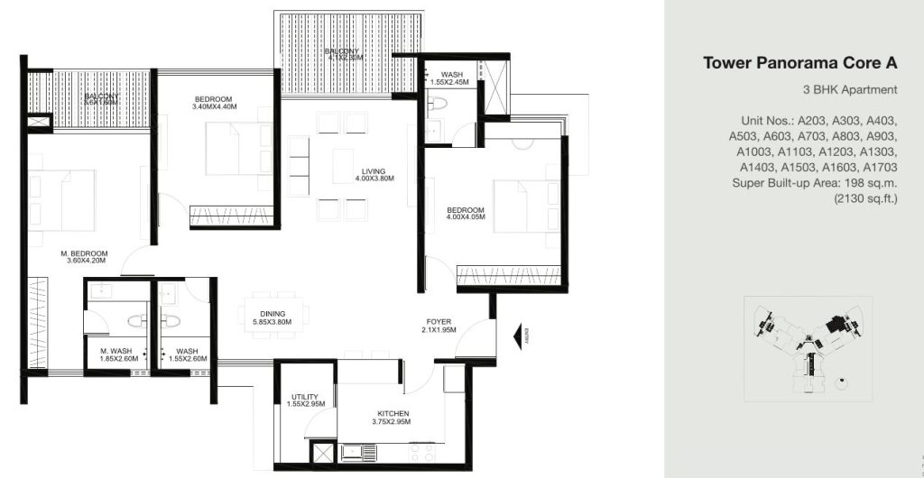
3 BHK2173 to 2762Not Available

 

More about the Builder – Godrej Properties  

Godrej Properties brings the Godrej Group philosophy of innovation, sustainability, and excellence to the real estate industry. Each Godrej Properties development combines a 119–year legacy of excellence and trust with a commitment to cutting-edge design and technology. Godrej Properties is currently developing residential, commercial, and township projects spread across approximately 11.89 million square meters in 12 cities.

In the last 3 years, Godrej Properties has received over 150 awards and recognitions, including the “Real Estate Company Of The Year” at the Construction Week India Awards 2015, ‘Golden Peacock Award for Sustainability for the year 2015 by the Institute Of Directors (IOD), “Most Reliable Builder for 2014” at the CNBC AWAAZ Real Estate Awards 2014, “Innovation Leader in Real Estate” award at the NDTV Property Awards 2014 and “Popular Choice – Developer of the Year” award by ET NOW in 2013.

70000
Monthly
  • Principal & Interest
  • Property Tax
  • Home Insurance

Google Nearby Places