Overview

Embassy Greenshore is a premium residential apartment project located within the prestigious Embassy Springs township near Bangalore International Airport, Devanahalli.

Spread across 14 acres inside the expansive 300-acre Embassy Springs development, the project offers thoughtfully designed 2, 3, and 4 BHK apartments that reflect Embassy Group’s luxury living standards.

Surrounded by lush greenery and open spaces, the community enjoys access to a large central town center spanning over 21 acres, bringing together a wide range of lifestyle amenities and recreational zones that enhance everyday living.

Developed by the renowned Embassy Group, Greenshore promises high-quality construction, elegant architecture, and a refined lifestyle within one of North Bangalore’s most prominent integrated townships.

The location offers excellent connectivity, situated off Bellary Road (NH4) with quick access to Bangalore International Airport, KIADB Aerospace Park, Yelahanka, Hebbal, and major tech hubs. Key destinations like the airport, Sparsh Hospital, SAP Labs, and Thanisandra are within 15–20 minutes, while Hebbal Flyover, Budigere Cross, and Manyata Tech Park are about 30 minutes away.

Residents can enjoy a host of premium amenities including a clubhouse, landscaped gardens, swimming pool with lounge areas, gymnasium, indoor and outdoor recreation spaces, sports courts, children’s play areas, yoga and meditation zones, party halls, and comprehensive 24/7 security systems.

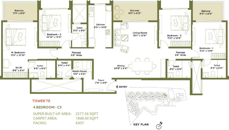
Embassy Greenshore Configuration

Project Location@ Embassy Springs,
Devanahalli
Total Land Area14 Acres
(300 Acres Total)
No. of Units800 Units
Unit Variants2,3,4 BHK
Possession TimeDec 2031 Onwards

Embassy Greenshore Specifications

Structure
  • RCC-framed building structure

  • Solid concrete block masonry for exterior and interior walls (where applicable)

Flooring
  • Engineered marble flooring in living, family areas, bedrooms, and kitchen

  • Anti-skid vitrified/ceramic tiles in bathrooms and balconies

Doors
  • Engineered wooden door frames with hollow-core laminate-finished shutters

  • Digital door lock for the main door

  • Aluminium windows with glass railings for enhanced safety

Plumbing and Sanitary
  • CP and sanitary fixtures by Kohler or equivalent

  • Granite countertop wash basins in all toilets

  • Half shower partition in the master bedroom toilet

  • Rainwater harvesting provision with drain pipes.

Security
  • Passenger and service lifts of suitable capacity in every block

  • 24/7 security with intercom facility

  • CCTV surveillance at all key points

Electricity
  • BESCOM grid power supply up to 7 kW per home

  • Premium modular switches of reputed make

  • Concealed PVC-insulated copper wiring

  • 100% power backup for apartments, lifts, and common areas

Embassy Greenshore Amenities

Gymnasium

Luxury Clubhouse

Swiming Pool

Indoor Games Area

Pet Park

Multiple Sport Courts

Retail Store

Landscaped Gardens

Spa & Sauna

Multipurpose Party Area

Kids Play Area

Jogging,Skating Track

Embassy Greenshore Price

 
Unit Type Size in Sq.ft Approx. All Inclusive Price
3 BHK 1750 to 1850 Rs. 1.90 Crore Onwards
4 BHK 2530 Rs. 2.73 Crore Onwards

More about the Builder –Embassy Group

Embassy Property Developments Private Limited began operations in 1993, and along with our promoters, we bring 28 years of experience in the real estate development sector. Embassy boasts an extensive land bank across India and has developed nearly 30 million square feet of prime commercial, residential, and retail space as of March 2012. Additionally, we have expanded our operations internationally in Malaysia and Serbia.

Over the past 28 years, Embassy has completed over 5.3 million square feet of residential spaces. Our ongoing residential projects include luxury apartments and integrated townships, many of which are designed to achieve IGBC Green Homes Certification as part of our commitment to sustainable development.

Looking ahead, Embassy aims to strengthen its tenant relationships and expand its portfolio of Information Technology spaces across India and internationally. We also plan to focus on developing residential and retail spaces, along with hospitality projects within the integrated townships and business parks we create.

19000000
Monthly
  • Principal & Interest
  • Property Tax
  • Home Insurance

Google Nearby Places