Overview

Birla Evara Sarjapur is a newly launched, premium residential apartment project located on Gattahalli Road, just off Sarjapur Road in East Bangalore.

Spanning over 30 acres of land, this residential enclave offers the finest in Birla Estates’ luxury living. The project features spacious 1, 2, 3, and 4 BHK apartments, each designed with premium and luxurious finishes.

The development is surrounded by beautiful landscapes, with more than 75% of the area dedicated to open spaces and green cover, adding to the charm and exclusivity of Birla Evara Sarjapur.

With its stunning architecture, the builder is committed to providing a high-quality living experience to residents in the vibrant Sarjapur Road community.

Ideally located, Birla Evara Sarjapur enjoys excellent connectivity, situated in the heart of East Bangalore on Gattahalli Road, near prominent landmarks such as Assetz Projects, Adarsh Projects, Kodathi, Carmelaram, Hadosiddapura, RGA Tech Park, and Wipro SEZ.

The project offers over 50 top-notch amenities, including a fully equipped clubhouse, landscaped gardens, gymnasium, swimming pool, recreation rooms, outdoor sports courts, children’s play area, a party hall, and 24/7 state-of-the-art security, ensuring a safe and luxurious lifestyle for its residents.

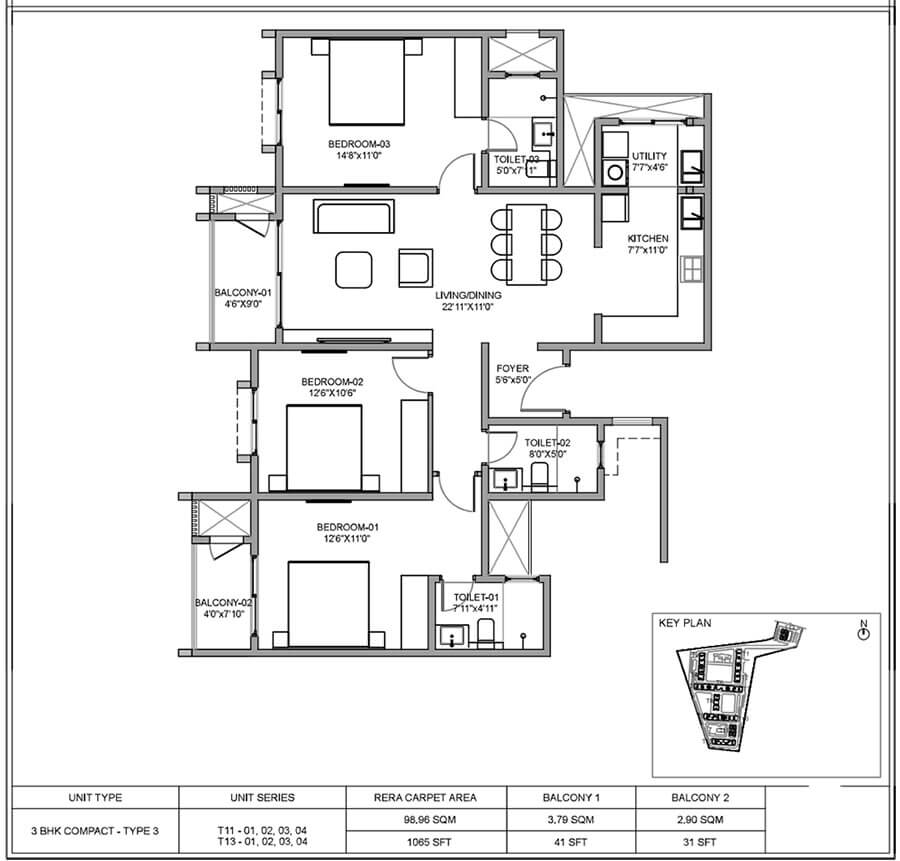
Birla Evara Configuration

Project LocationGatahalli,
Off Sarjapur Road
Total Land Area30 Acres
No. of Units1600 Units
Towers and Blocks13 Towers
2B + G + 23 Floors
Unit Variants1,2,3,4 BHK
Possession Time2030 Onwards

Birla Evara Specifications

Structure
  • RCC framed, seismic-compliant structure.
  • Concrete solid block masonry.
Flooring
  • Living areas, bedrooms, kitchen, and dining: Vitrified tiles.
  • Master bedroom: Wooden laminate flooring.
  • Bathrooms and balconies: Anti-skid ceramic tiles.
Doors
  • Main and internal doors: Hardwood frame with flush door.
  • Bathroom doors: Hardwood frame, hollow core flush shutter, painted.
  • Windows: Glazed, UPVC frame with sliding shutter and mosquito mesh.
Plumbing and Sanitary
  • Premium quality CP fittings with shower mixer.
  • Premium quality sanitary ware.
  • Rainwater harvesting drain pipes included.
Security
  • 24/7 security with intercom facility.
  • CCTV cameras installed at all vantage points.
Electricity
  • Grid power supply from BESCOM for each unit.
  • Modular switches from reputed brands.
  • Copper electrical wiring throughout using concealed conduits.

Birla Evara Amenities

Gymnasium

3 Luxury Clubhouse

Swimming Pool

Indoor Games Area

Jogging, Walking Track

Multiple Sport Courts

Party Area

Landscaped Gardens

Kids Play Area

Amphitheatre

Retail Store

Yoga Deck

Birla Evara Price

 

Unit TypeSize in Sq.ftApprox. All Inclusive Price
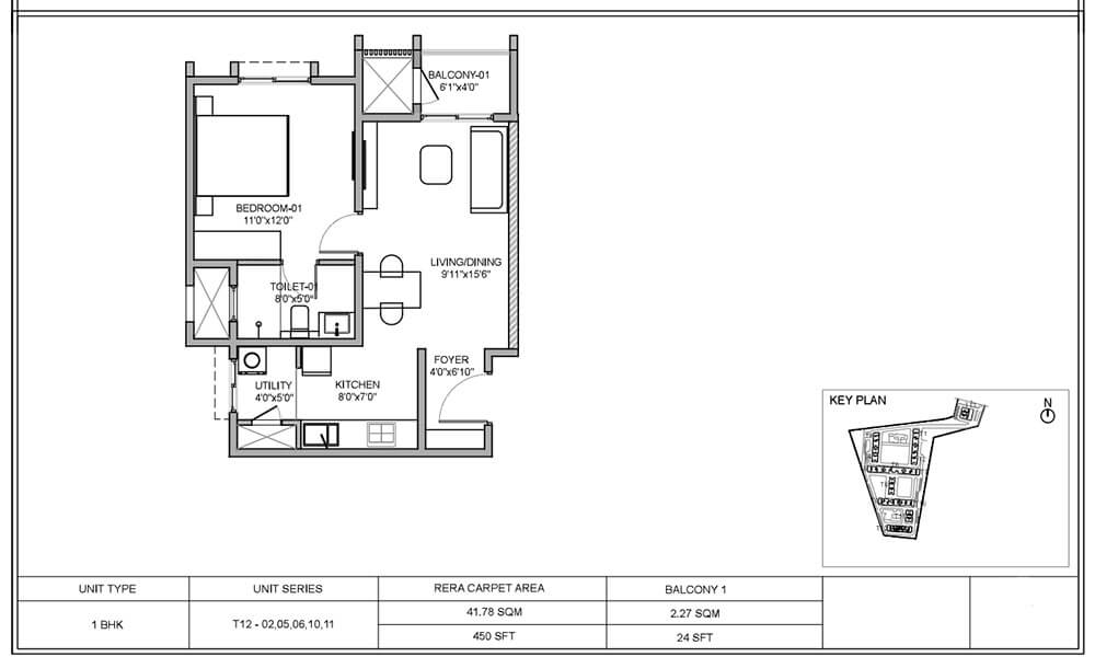
1 BHK458Rs. 71 Lacs to Rs. 76 Lacs Onwards
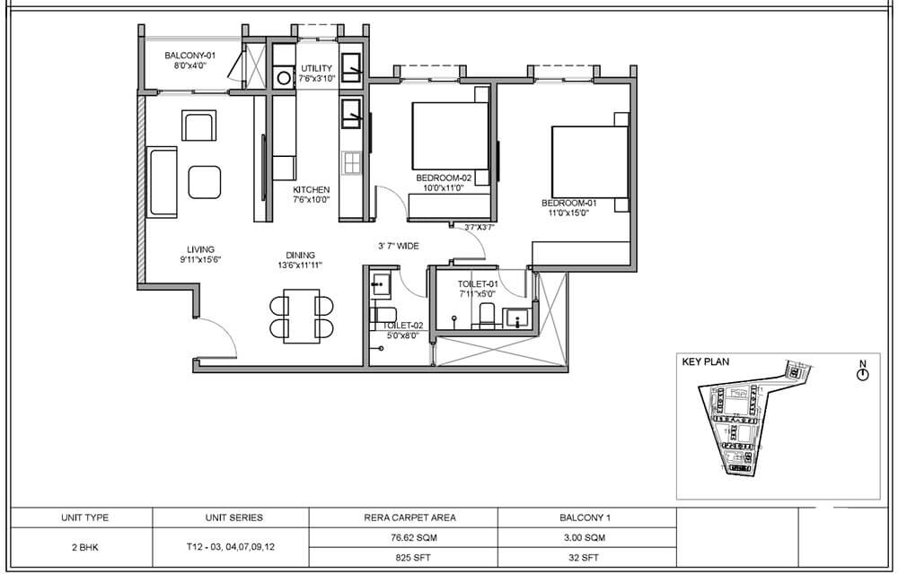
2 BHK825Rs. 1.41 Crore to Rs. 1.50 Crore Onwards
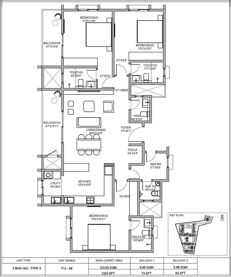
3 BHK1085 to 1093Rs. 1.85 Crore to Rs. 1.98 Crore Onwards
3 BHK Large1229 to 1231Rs. 2.10 Crore to Rs. 2.22 Crore Onwards
3 BHK + Study1368 to 1403Rs. 2.17 Crore to Rs. 2.37 Crore Onwards
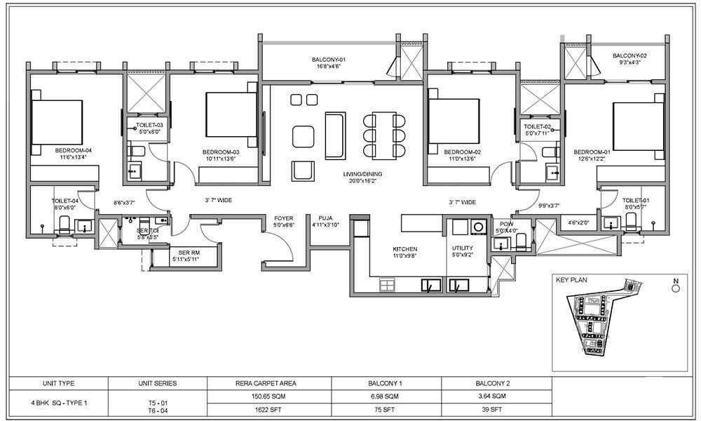
4 BHK + Study1653 to 1681Rs. 2.93 Crore to Rs. 3.16 Crore Onwards

More about the Builder – Birla Estates

Birla Estates is the real estate arm of Century Textiles and Industries Ltd., a flagship company of the B. K. Birla Group, with a diverse portfolio exceeding ₹8,000 crores that spans cement, textiles, rayon yarn, pulp and paper, salt, and chemicals, among other sectors. The firm is focused on developing various land parcels it owns, as well as pursuing joint ventures and strategic partnerships in key cities.

Birla Estates aims to transform perceptions of the Indian real estate sector by delivering exceptional experiences and creating value for every stakeholder at all levels. The company is committed to providing an iconic brand experience that reflects its legacy, with a steadfast focus on transparency, commitment, quality, and superior design.

7100000
Monthly
  • Principal & Interest
  • Property Tax
  • Home Insurance

Google Nearby Places